| 物件br−56 | ||||||||||||||||||||||||
|---|---|---|---|---|---|---|---|---|---|---|---|---|---|---|---|---|---|---|---|---|---|---|---|---|
| 所在地 | 大阪市淀川区東三国4− |
敷 金 (礼 金) |
10〜40万円 (20〜60万円) |
|||||||||||||||||||||
| 最寄り駅 | 地下鉄御堂筋線 東三国駅 徒歩1分 | 賃 料 (空室) |
・7,4万〜38万円 | |||||||||||||||||||||
| 構造 | 鉄骨鉄筋コンクリート造・地上12階建 | 共益費 | ・0,9万〜2万円 | |||||||||||||||||||||
| 竣工 | 平成20年1月末日(2/1入居開始) | 水道代 | 実費 | |||||||||||||||||||||
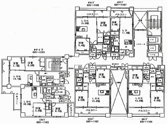
| 間取り (A〜E) |
・Aタイプ→1LDK(39,68u) ・Bタイプ→1 DK(31,84u) ・Cタイプ→1LDK(34,57u) ・Dタイプ→2LDK(64,64u) ・Eタイプ→2LDK(63,84u) |
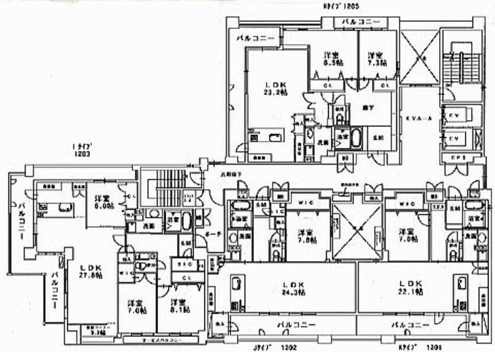
間取り (F〜K) |
・Fタイプ→2LDK(63,01u) ・Gタイプ→2LDK(68,14u) ・Hタイプ→2LDK(104,32u) ・Iタイプ→3LDK(117,11u) ・Jタイプ→1LDK(83,31u) ・Kタイプ→1LDK(78,69u) |
|||||||||||||||||||||
| 館内設備 | ■オートロック非接触鍵■エレベーター(2基)■防犯カメラ設置■宅配BOX■CATV・BS■駐輪場■駐車場■バイク置き場■トランクルーム(F,I,J,Kタイプのみ) | |||||||||||||||||||||||
| 室内設備 | ●モニター付きインターホン●玄関ダブルロック鍵●シューズBOX●システムキッチン●浴室暖房乾燥機●浴室追い焚き機能付き●24時間換気機能付●シャンプードレッサー●ウォシュレット●ミストサウナ・カップボード(D〜Kタイプ)●食洗機・スロップシンク(H〜Kタイプ)●調光式ダウンライト(A〜C,H〜Kタイプ)※リビングのみ●壁掛け型エアコン1台(A〜Cタイプ)●天井埋込型エアコン(H〜Kタイプ)※リビング2台●天井内蔵型昇降式物干し(A〜Cタイプ)●床暖房(H〜Kタイプ)※リビングのみ | |||||||||||||||||||||||
| その他 |
《サニーサイド240》【立体駐車場サイズ】全長:5,050mm 幅:1,850mm 高:1,550mm 重:2,000kg 【賃料条件】 ・立体駐車場・・・31,500円 ・自転車・・・・・・・・1,050円 ・原付バイク・・・・・3,150円 |
|||||||||||||||||||||||
|
||||||||||||||||||||||||
