| オフィスbQ48 |
お問い合せ |
| 名 称 |
リーガル新大阪ビル
|
敷 金
|
・賃料の3ヶ月分 |
| 所在地 |
・大阪市淀川区宮原2−1−17 |
礼 金 |
・賃料の2ヶ月分 |
| 最寄り駅 |
・大阪メトロ御堂筋線 東三国駅 徒歩4分
・JR東海道本線 新大阪駅 徒歩7分
・大阪メトロ御堂筋線 新大阪駅 徒歩7分
・JRおおさか東西線 新大阪駅 徒歩7分
・JR東海道本線 東淀川駅 徒歩5分
|
賃 料 |
・(坪)7,914〜11,289円
※部屋により坪単価が異なる。 |
| 共益費 |
・(坪)970〜1,411円
※部屋により坪単価が異なる。 |
| 構造 |
・鉄筋コンクリート造・地上8階建 |
駐車場 |
・敷地内6台 |
| 竣工 |
・1973年9月竣工 ☆2021年5月建物大規模修繕実施済み。 |
| 契約種別 |
・定期借家契約 2年(再契約可) |
募集状況 |
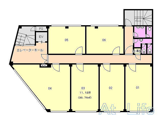
・11,12坪/22,69坪/33,25坪 |
| 設備 |
■個別空調(24時間使用可)■機械警備システム導入■エレベーター1基■立体駐車場■光 Bフレッツ即使用可 |
| コメント |
【新大阪 貸事務所|宮原2丁目エリア】
〜2021年5月に建物大規模修繕実施済み!〜
■エントランス夜間オートロック(セキュリティ連動)
■これから独立をお考えの方等にお勧めのお手頃オフィスです。
■近隣にはお昼時に困らない各コンビニ,お弁当屋さん、飲食店etc多数有り。
※エントランス内テナントネームプレート作成費¥20,000/税別
※短期違約金有り:1年以内の解約は、賃料+共益費の2ヶ月分。
※貸し主指定保証会社(Jリース)加入義務有り。
※パーティションの変更により各フロアの坪数・号室が異なります。
※賃料・共益費・礼金等には、別途消費税が必要です。
※退去時の原状回復費は別途負担。
※行き違いで申し込み済みの場合もありますのでご了承下さい。
◎諸条件等ご相談下さいませ。
取引態様:仲介
|
【新大阪 貸事務所|リーガル新大阪ビル】
|

外 観
|

【基準階】
|
|
大阪 オフィス 新大阪 貸事務所 SOHOのことなら・・・
大阪市淀川区宮原3−3−11
アットライフ新大阪センター
TEL:06−6150−0677 FAX:06−6150−0688
HP:http://www.at-life.info/ メール:info@at-life.net
|
|