大阪 新大阪 貸事務所 西中島南方周辺のオフィス探なら|アットライフ新大阪本店

《トップ》《SOHO》《10坪以下》《10〜20坪》《20〜30坪》《30〜50坪》《50〜100坪》《100坪〜》
オフィスbR08 お問い合せ(空室確認)
名 称


セントランドビル

保証金
・(坪)12万円
所在地 ・大阪市淀川区西中島3− 解約引 ・20%
最寄り駅 ・地下鉄御堂筋線 西中島南方駅 徒歩2分
・阪急京都線 南方駅 徒歩3分
・地下鉄御堂筋線 新大阪駅 徒歩8分
・J R東海道本線 新大阪駅 徒歩9分
賃 料 ・(坪)11,000円
共益費 ・(坪)3,500円
構造 ・鉄骨鉄筋コンクリート造・地上8階建 他費用 ・電気基本料:(坪)780円 
・電気使用料:22円/kwh
竣工 ・1986年11月竣工
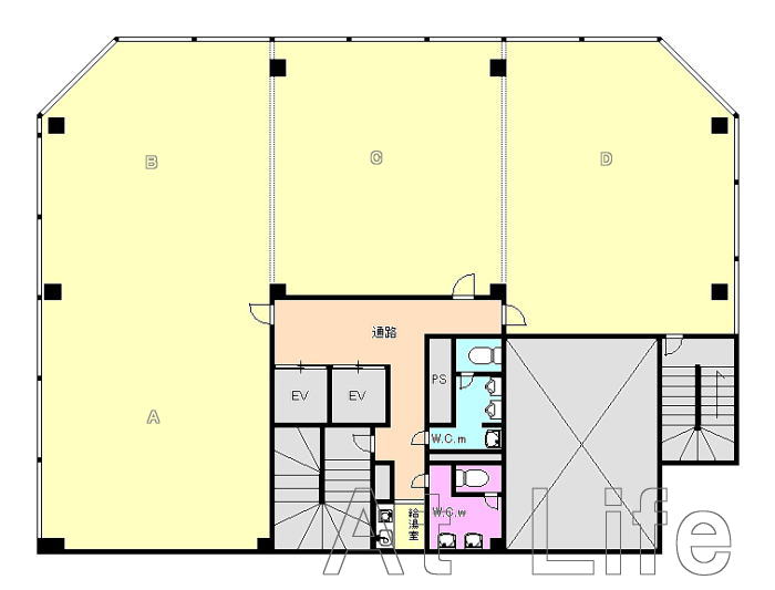
天井高 ・2600mm 募集状況 ◇D号室26坪 ◇AB号室42坪 
設備 個別空調(24時間使用可)カード式2重セキュリティーシステムエレベーターBGM付2基(9人乗り)光ファイバー対応男女別共用トイレ(ウォシュレット完備)給湯室(電気式自動給湯装置))OAフロア可無料会議室(別棟)全自動立体駐車場(32台)
コメント


【西中島南方 新大阪 貸事務所】

〜西中島3丁目エリア〜


《Selling point》

三菱ビルテクノサービスによる綜合警備及びメンテナンス

室内・館内はものすごく綺麗です!ビルの管理日本一を目指しているオフィスビルです。

入居テナント様同士とのトラブル等一切ない安心・安全のオフィスビルです。

全自動立体駐車場:32台収容→保証金10万円 賃料→35,000円/税別

別棟にて貸し会議室有り(27席まで対応)
無料!

近隣に各銀行(りそな銀行・三菱東京UFJ銀行・十三信用金庫),郵便局,オフィス文具ショップ、飲食店、コンビニ多数etc

パーティションの変更により各フロアの坪数・号室が異なる事もあります。

契約面積=実効面積。

賃料・共益費・解約引等に別途消費税が必要です。

退去時の原状回復費義務有り。

行き違いで申し込み済みの場合もありますのでご了承下さい。

諸条件等ご相談下さいませ。

取引態様:仲介


【新大阪 西中島南方 貸事務所|セントランドビル】



【セントランドビル 外観写真】



【基準階】


大阪 オフィス 新大阪 貸事務所 西中島 SOHOのことなら・・・
大阪市淀川区宮原3−3−11
アットライフ新大阪センター
TEL:06−6150−0677 FAX:06−6150−0688
HP:http://www.at-life.info/ メール:info@at-life.net