| オフィスbR10 |
お問い合せ(空室確認) |
| 名 称 |
第2谷ビル
|
保証金
|
・賃料の3ヶ月 |
| 所在地 |
・大阪市淀川区西宮原1− |
解約引 |
・− |
| 最寄り駅 |
・地下鉄御堂筋線 新大阪駅 徒歩5分
・J R東海道本線 新大阪駅 徒歩6分
|
賃 料 |
・(坪)0,55万円 |
| 共益費 |
・(坪)0,3万円 |
| 構造 |
・鉄骨鉄筋コンクリート造・地上8階建 |
他費用 |
・火災保険加入の事 |
| 竣工 |
・1993年3月竣工 |
| 天井高 |
・2550mm |
募集状況 |
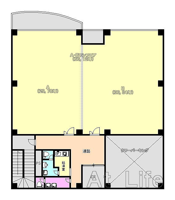
◇29,78坪 ◇36,34坪 ◇66,12坪(ワンフロアー) |
| 設備 |
■個別空調(24時間使用可)■機械警備システム■エレベーター1基(11人乗り)■光ファイバー対応■男女別共用トイレ(ウォシュレット完備)■給湯室(共同)■立体駐車場■バイク置き場 |
| コメント |
【新大阪 貸事務所|西宮原エリア】
■立体駐車場→保証金2ヶ月分 賃料=32,400円/税別
■近隣に各銀行(りそなキャッシュコーナー・三菱東京UFJ銀行・三井住友銀行),郵便局,ホームセンターコーナン、ジョーシン電機、飲食店、コンビニ多数etc
※パーティションの変更により各フロアの坪数・号室が異なる事もあります。
※契約面積=91%。
※賃料・共益費・解約引等に別途消費税が必要です。
※退去時の原状回復費義務有り。
※行き違いで申し込み済みの場合もありますのでご了承下さい。
◎諸条件等ご相談下さいませ。
取引態様:仲介
|
【新大阪 貸事務所|第2谷ビル】
|

【第2谷ビル 外観写真】
|
11.jpg)
【エントランス@】
|
21.jpg)
【エントランスA】
|

【基準階】
|
|
大阪 オフィス 新大阪 貸事務所 西中島 SOHOのことなら・・・
大阪市淀川区宮原3−3−11
アットライフ新大阪センター
TEL:06−6150−0677 FAX:06−6150−0688
HP:http://www.at-life.info/ メール:info@at-life.net
|
|