新大阪 貸事務所 人気の宮原、西宮原エリアでのオフィス探なら|アットライフ新大阪本店

《トップ》《SOHO》《10坪以下》《10〜20坪》《20〜30坪》《30〜50坪》《50〜100坪》《100坪〜》
オフィスbsP−9 お問い合せ(空室確認)
名 称


MF新大阪ビル

保証金
・15,5万円/坪 ◎応相談
所在地 ・大阪市淀川区宮原2−14−4 解約引 ・スライド
最寄り駅 ・地下鉄御堂筋線 新大阪駅 徒歩7分
・J R東海道本線 新大阪駅 徒歩7分
・地下鉄御堂筋線 東三国駅 徒歩3分
賃 料 (坪)1,2万円 ◎応相談
共益費 (坪)0,36万円
構造 ・免震構造 鉄骨鉄筋コンクリート造・地上9階建 駐車場 ・EV式立体駐車場34台(内ハイルーフ車6台)
竣工 ・2007年3月
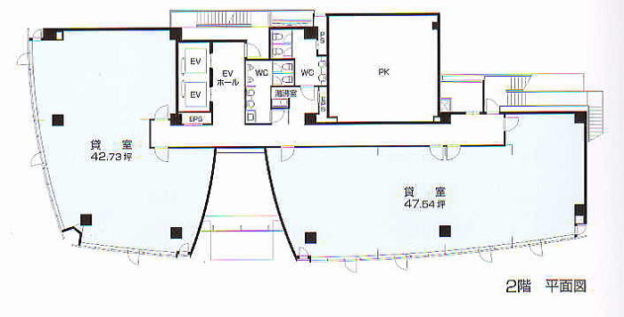
敷地面積 ・709,34u 基準階 ・ワンフロアー=336,42u(101,77坪)
・最小間仕切り=31,47u(9,52坪)〜
建築面積 ・520,76u 設計/
施工
・株式会社大林組
延床面積 ・4,404,12u 天井高 ・2,600mm
契約面積  ◇17,57坪(即入居可)
設備 個別空調防犯:24時間機械警備システムエレベーター2基(13人乗り)床:OAフロア(タイルカーペット)50VA/u(OAフロア内先行配線)照明:貸室内平均照度750lx通信回線:光ケーブル引込電話回線360回線男女別共用トイレ(ウォシュレット完備)給湯室(共用)駐車場:EV式立体駐車場34台(内ハイルーフ車6台)
コメント


【新大阪 貸事務所|宮原2丁目エリア】

〜大阪の表玄関、新大阪駅からすぐ!アクセスに優れた機能的なオフィス〜


約9坪〜101坪(ワンフロア)まで対応。

駐車場:普通車¥40,000− ハイルーフ車¥45,000− 保証金はいずれも15万円

免震構造。新耐震基準。

トイレ温水洗浄便座(1F 車いす対応)。


パーティションの変更により各フロアの坪数・号室が異なる事もあります。

契約面積=実効面積。

賃料・共益費等に別途消費税が必要です。

退去時の原状回復費義務有り。

行き違いで申し込み済みの場合もありますのでご了承下さい。

保証金・賃料・諸条件等ご相談下さいませ。

取引態様:仲介


【新大阪 OFFICE|MF新大阪ビル】



【外観写真】

 


【エントランス】



【エントランス】



セキュリティボックス



EVホール



大阪 オフィス 新大阪 貸事務所 西中島 SOHOのことなら・・・

大阪市淀川区宮原3−3−11

アットライフ新大阪センター

TEL:06−6150−0677 FAX:06−6150−0688

HP:http://www.at-life.info/ メール:info@at-life.net